项目需求
设计作品
大赛赛事
设计资讯
配套服务
登录/注册
冰美式
冰美式
1
收藏
关注
私信
#原创
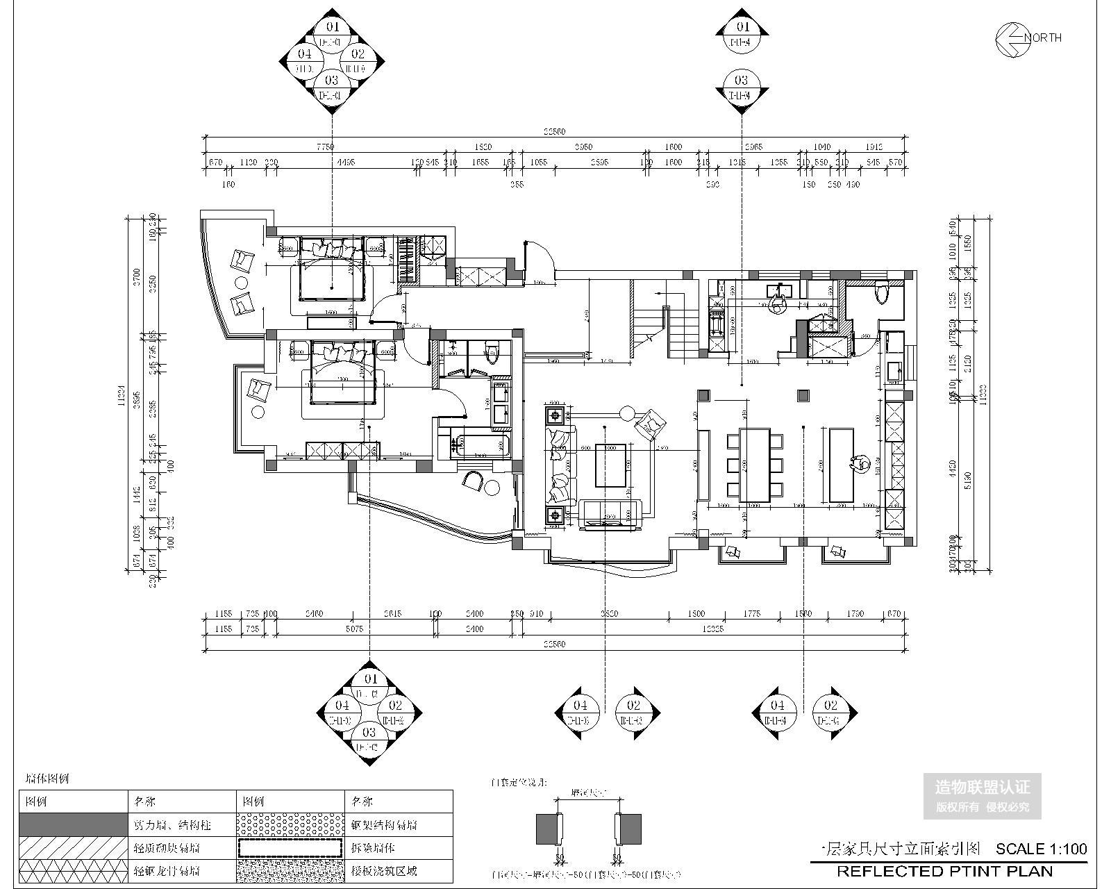
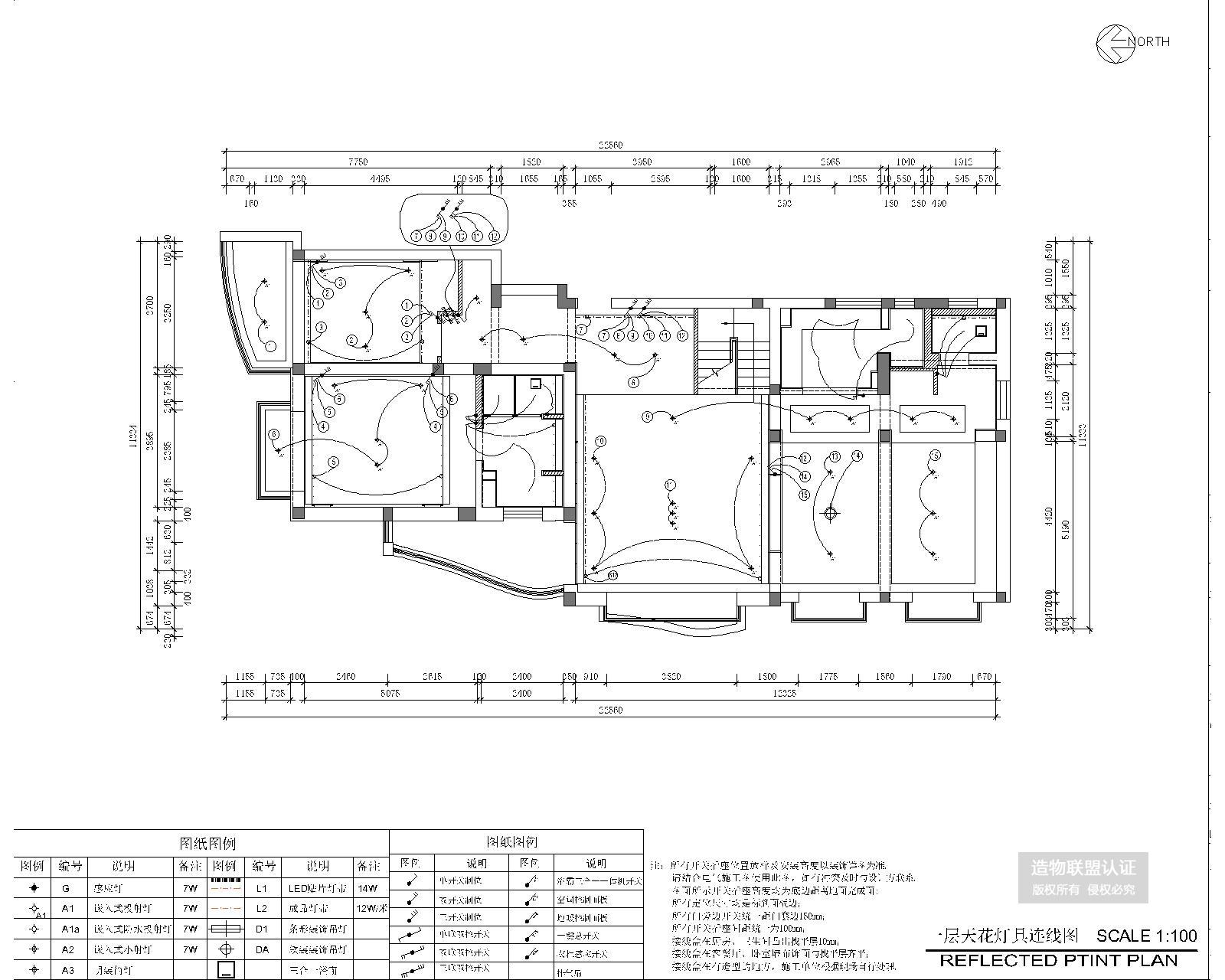
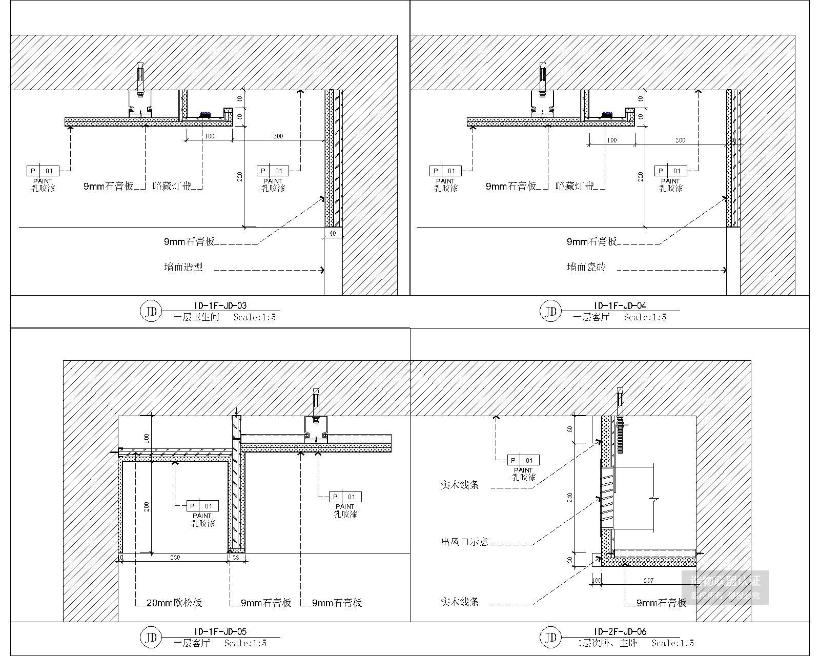
承接家装施工图纸30/㎡
设计费用¥
30.00元
创作周期
待定
103
0
0
0
发布于:
2023-11-10
评论
还可以输入
200
个字符
发布
暂无评论,快来抢沙发吧~
购买年度会员
付款方式
微信支付
WeChat Pay
支付宝
Alipay
微信支付
¥
0.02
打开手机端微信,扫一扫付款
支付宝支付
¥
0.02
立即支付
我已支付
点击按钮将跳转到支付宝支付页面
完成支付后请点击"我已支付"按钮
我已支付
点赞
分享